Tekniset edellytykset

Tämä interaktiivinen työkalu esittelee massiivipuurakentamisen teknisiä ratkaisuja liittyen akustiikkaan, muuntojoustavuuteen, kosteudenhallintaan ja värähtelyyn. Voit valita tarkasteltavan yksityiskohdan joko kuvasta tai painikkeista. Työkalussa käytetyt detaljikuvat ovat esimerkkejä As Oy Portinvartijasta.

Puurakentamisen tekniset edellytykset

12345
Akustiikka
Yleistä akustiikasta

Puurakenteilla voidaan saavuttaa asuinrakentamista koskevat äänivaatimukset ja ohjearvot. Erityishuomio on huoneistojen välisten rakenteiden ja liitosten suunnittelussa sekä toteutuksessa. Ulkovaipan riittävä ääneneristävyys tulee tarkastaa, jos kohde sijoittuu liikennemelualueelle.

1) Ulkoseinän liitos välipohjaan

Puurakenteiden ääneneristävyys perustuu rakenteiden kerroksellisuuteen sekä liitoksissa käytettäviin joustaviin materiaalikerroksiin ns. tärinäneristysmateriaaleihin. Runkorakenteet eivät jatku yhtenäisenä asuinhuoneistojen välillä. Rakenteet tiivistetään ilmatiiviiksi esimerkiksi elastisilla saumamassoilla.

2) Sisäseinän liitos välipohjaan

Huoneistojen väliset rakenteet toteutetaan kaksinkertaisilla rakenteilla, mikä parantaa huoneistojen välistä ääneneristävyyttä. Runkorakenteiden liitososat eristetään siten, ettei ääni ja värähtely siirry haitallisesti asuinhuoneistojen välillä.

3) Porrashuoneen seinä

Nykyaikaiset laskentamenetelmät mahdollistavat ääniominaisuuksien optimoinnin ja vertailun, jolloin rakenteet voidaan mitoittaa tarkasti käyttötarkoituksen vaatimukset täyttäviksi ja kustannustehokkaiksi.

4) Parvekeliitos

Puurakenteisen asuinrakennuksen akustiikkasuunnittelu edellyttää tarkkaa liitosteknistä suunnittelua ja rakennustekniikan ymmärrystä. Parvekelaatta asennetaan tärinäneristetyn konsolin päälle, jotta parveke ei aiheuta meluhaittaa alapuoliseen asuntoon.

5) Sisäseinän liitos ulkoseinään

Asuinhuoneistoja erottava seinä on toteutettu kaksinkertaisella rungolla ja ulkoseinän kantava rakenne katkeaa asuinhuoneistojen välillä. Melualueelle rakennettaessa tulee ottaa huomioon myös ulkoseinärakenteita koskevat ääneneristävyysvaatimukset.

1234
Muuntojoustavuus
Yleistä muuntojoustavuudesta

Asuinkerrostalossa muuntojoustavuus tarkoittaa tilaratkaisuvaihtoehtojen monipuolisuutta, ja elinkaaren aikaisten muutosten mahdollistamista. Rakenteellinen muuntojoustavuus luo lähtökohdat toteutuksen jälkeen tehtäville asuntojakauman ja asuntotyypin muutoksille. Asuntojakauman suunnittelussa voidaan määritellä yhdisteltävien huoneistojen tyypit ja vaihtoehtomallit.

1) Seinälinja alemmassa kerroksessa

Vierekkäisten asuntojen yhdistäminen mahdollistuu, kun pohjaratkaisujen toimivuus on varmistettu erilaisissa yhdistelymalleissa. Huomioitavia asioita ovat teknisten nousukuilujen sijainnit ja tilamitoitus. Rakenteissa voidaan huomioida huoneistojen välisten seinien aukotettavuus, tai poisjääminen ylemmissä kerroksissa.

2) Seinälinja ylemmässä kerroksessa

Asunnon huonejaon muunneltavuus auttaa tilaa muuntautumaan erilaisiin elämänvaiheisiin ja muuntuvaan asukasmäärään. Jakovaihtoehdot huomioidaan sähkön ja lvi:n reitityksissä, sekä julkisivun aukotuksissa. Muuntuvan väliseinälinjan purettavuus voidaan huomioida osana seinän toteutustapaa.

3) Vierekkäisten asuntojen yhdistyminen

Vierekkäisten asuntojen yhdistäminen mahdollistuu, kun pohjaratkaisujen toimivuus on varmistettu erilaisissa yhdistelymalleissa. Huomioitavia asioita ovat teknisten nousukuilujen sijainnit ja tilamitoitus. Rakenteissa voidaan huomioida huoneistojen välisten seinien aukotettavuus, tai pois jääminen ylemmissä kerroksissa.

4) Huoneistojen sisäiset seinämuutokset

Asunnon huonejaon muunneltavuus auttaa tilaa muuntautumaan erilaisiin elämänvaiheisiin ja muuntuvaan asukasmäärään. Jakovaihtoehdot huomioidaan sähkön ja lvi:n reitityksissä, sekä julkisivun aukotuksissa. Muuntuvan väliseinälinjan purettavuus voidaan huomioida osana seinän toteutustapaa.

12345
Kosteudenhallinta
Yleistä kosteudenhallinnasta

Massiivisia puurakenteita sisältävän rakennuksen kosteudenhallintaan tulee kiinnittää erityistä huomiota. Kosteusvaurioiden ehkäisemiseksi puun kosteuspitoisuus tulee pitää riittävän alhaisena koko toimitusketjun ajan, mutta toisaalta puun liian nopea kuivuminen aiheuttaa rakenteiden halkeilua.

1) Puurungon kosteuden kestävyys

CLT-rakenne ei vahingoitu lyhytaikaisesta altistumisesta kosteudelle. Työn aikaisen kosteuden poistuminen rakenteista varmistettava ennen verhouksien asentamista. Halkeilun välttämiseksi näkyviä puupintoja ei saa kuivattaa liian nopeasti.

2) Märkätilarakenteet

Märkätilojen seinissä käytetään tuulettuvaa taustarakennetta. Vedeneristyksen pohjana pintarakenteiden kannatukseen soveltuva märkätilalevy.

3) Seinärakenteiden liitokset

Huoneistojen välinen seinä koostuu CLT-elementistä ja paikalla rakennettavasta liimapuu-rankaseinästä. Valitulla rakenteella varmistetaan, että runkorakenteeseen ei rakennusvaiheessa pääse kertymään kosteutta ilman sääsuojaa rakennettaessa.

4) Liittyminen sokkelirakenteeseen

CLT-seinän alareunassa kosteuskäsittely. CLT-seinän korko lattiavalun yläpinnassa.

5) Parvekkeen vedeneristys

Parvekkeen vedeneristeenä toimii kumibitumikermi, jossa nostot parvekkeen seinille. Parvekelaatan etureunaan työstetty ura vesikourulle. Vedenpoisto ulosheittäjällä.

2
Värähtely
Yleistä värähtelystä

Puurakenteisen välipohjan paksuuden määrittää usein normaalitilanteessa värähtelymitoitus. Värähtelymitoitus puurakenteilla on haastavaa, sillä jäykkyyteen vaikuttavia pintarakenteita on vaikea huomioida järkevästi. Värähtelyn määrittämisessä onkin edullista hyödyntää mittauksia jo rakennetuista kohteista.

1) Välipohjan värähtelylaskenta

Monimuotoisten välipohjien värähtelylaskennassa voidaan käyttää apuna FEM-laskentaa.

2) Välipohjan rakennevahvuus

Välipohjan jänneväli ja tuenta vaikuttaa välipohjalaatan kantavan rakenteen paksuuteen.

3) Värähtelyä vähentävät tukirakenteet

Välipohjan kannattelussa voidaan käyttää pilari-palkkilinjoja. Palkin koko ja pilareiden sijoitus vaikuttaa laatan värähtelymitoitukseen.

1234
Paloturvallisuus
Yleistä paloturvallisuudesta

Oikein suunniteltuna ja toteutettuna puurakennus on yhtä paloturvallinen kuin muistakin materiaaleista toteutetut rakennukset. Rakennuksen runkomateriaalilla ei henkilöturvallisuuden kannalta muutenkaan ole tulipalossa juuri merkitystä – vaarallisimpia ovat irtaimiston palaessa syntyvät myrkylliset savukaasut.

1) Pintaluokat ja materiaalit

Palomääräykset asettavat vaatimuksia rakenteiden materiaaleille, pinnoille sekä pintarakenteiden palosuojausominaisuuksille.

2) Tuuletusraon palokatkot

Palon leviäminen julkisivuverhouksen tuuletusvälissä on rajoitettu rei’itetyllä palokatkoprofiililla.

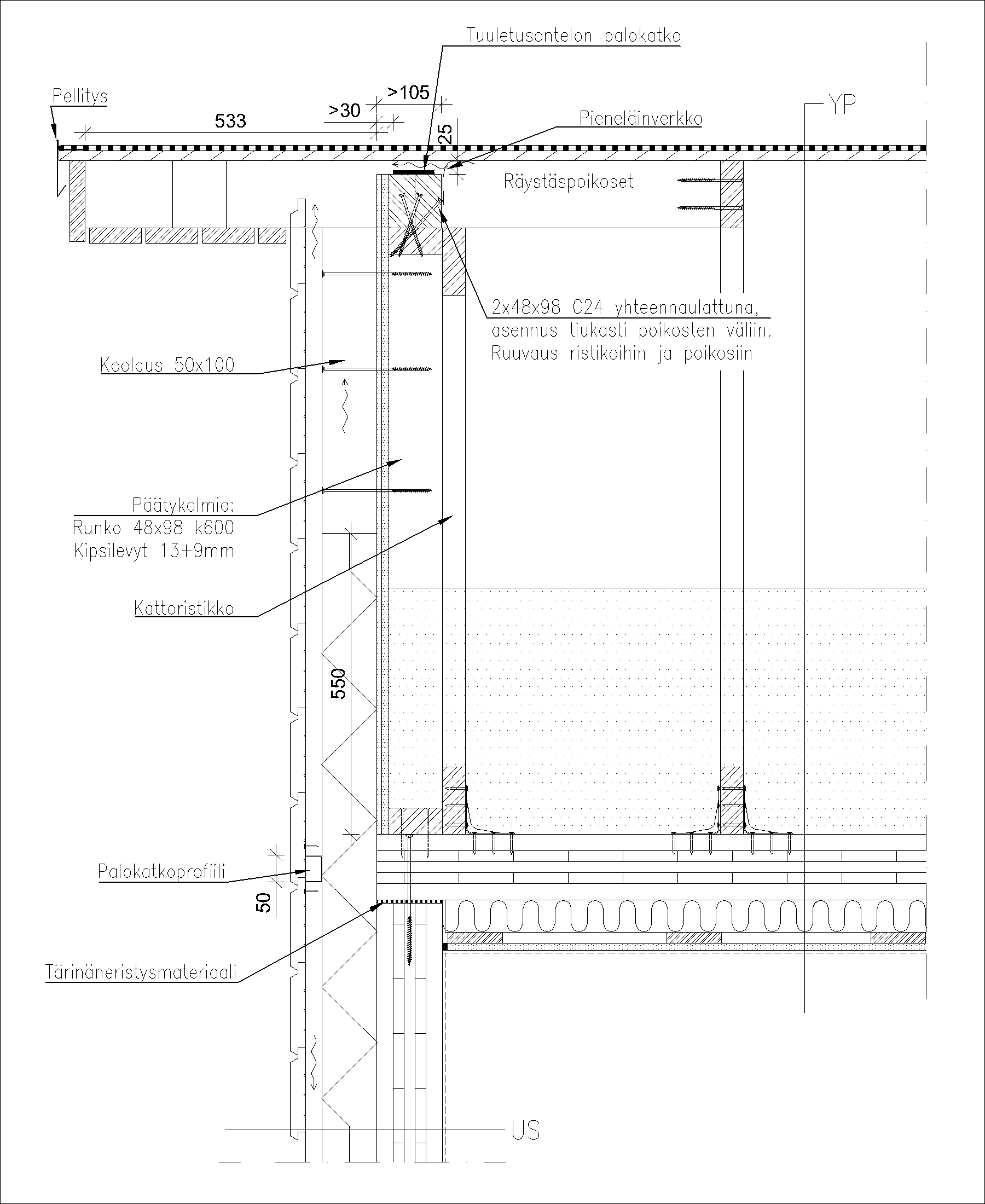
3) Räystään paloratkaisut

Palon leviäminen yläpohjaan estetty EI30 räystäsrakenteella. Yläpohjan tuuletusraossa palokatko, joka tukkii tuuletuksen palotilanteessa.

4) Yläpohjaontelon paloratkaisut

Yläpohjatila jaetaan enintään 400 m2 osiin (EI15). Yläpohjan tuulettuvuus osastoivan rakenteen läpi varmistetaan paloluokitetulla tuuletusventtiilillä. Lisäksi ullakkotilat jaetaan enintään 1600 m2 palo-osastoihin (EI30).

Lähteet
  1. Pääkuva: Kotkan Tapahtumakeskus, Puurakentajat Group Oy
  2. Niko Mähönen, Schauman Arkkitehdit Helsinki Oy
  3. Susanna Friman, Sweco Group
  4. Pekka Latvanne, A-Insinöörit Oy
  5. Esko Mikkola, KK-Palokonsultti Oy